Downloads

Flyer

Unser aktueller Flyer als A4 PDF Datei

Unser aktueller Flyer als A4 JPG Datei

Marktplan A2 PDF

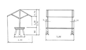
Abmessungen Marktstand PDF